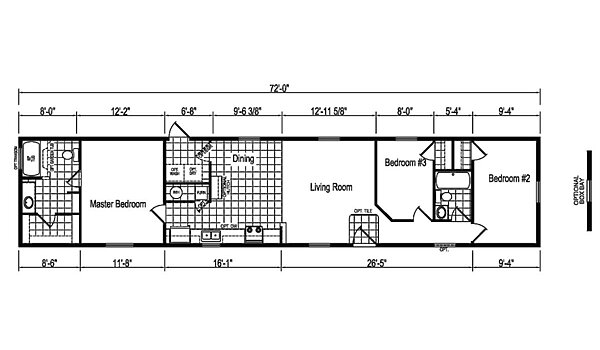
The Chesapeake / ERH-76S6002-CS built by Eagle River Homes blends efficient single-section living with a bright, open layout. A private master suite anchors one end with a roomy bath, linen storage, and closet. In the middle, an efficient kitchen links to the dining area and includes pantry space plus a washer/dryer nook. A large living room leads to two secondary bedrooms served by a hall bath. With 1,092 sq. ft., 3 bedrooms and 2 bathrooms, The ERH-76S6002-CS offers comfort and value. Optional box-bay windows and a tiled foyer enhance curb appeal and entry.