Manufactured

Hudson Double ERH-60J611-H

Built by: Eagle River Homes

3D Home Tour

No 3d Tour Available

About this Home

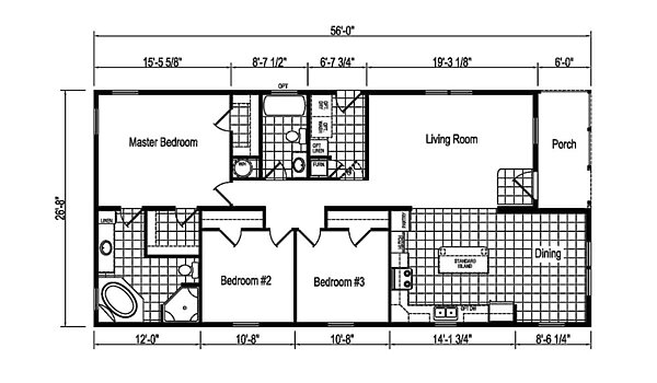
The Hudson Double / ERH-60J611-H built by Eagle River Homes features 1,493 square feet with 3 bedrooms and 2 bathrooms. The layout includes a large living room that connects seamlessly to a dining area and kitchen with a central island and pantry. The master suite is privately set with a full bath, while two additional bedrooms share convenient access to the second bathroom. A porch extends the living space, creating a welcoming entry. The ERH-60J611-H blends comfort and practicality for modern living.

Share this home

Details

  • 3 Bedrooms
  • 2.00 Bathrooms
  • 1493 Square Feet
  • 28’0″ x 60’0″

PHotos

Tours & Videos

Specifications

No specification data available
¿Hablas español?