Manufactured

Hudson Double ERH-64J737

Built by: Eagle River Homes

3D Home Tour

No 3d Tour Available

About this Home

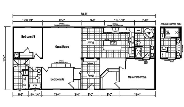
The Hudson Double / ERH-64J737 built by Eagle River Homes delivers 1,600 square feet of comfortable living with 3 bedrooms and 2 bathrooms. The spacious layout highlights a welcoming foyer, a great room for gatherings, and a dining area conveniently connected to a modern kitchen with a center island. The master suite includes a private bath with optional upgrades, while two additional bedrooms offer ample space. Blending style and practicality, the ERH-64J737 is designed to fit a variety of lifestyles.

Share this home

Details

  • 3 Bedrooms
  • 2.00 Bathrooms
  • 1600 Square Feet
  • 28’0″ x 64’0″

PHotos

Tours & Videos

Specifications

No specification data available
¿Hablas español?