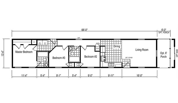
The Hudson Single / ERH-70F151-HS built by Eagle River Homes offers a smartly arranged 3-bedroom, 2-bathroom layout across 880 square feet. The master bedroom includes easy access to its own bath, while two additional bedrooms share a central bathroom for added convenience. An open dining and living area provides welcoming space for gathering, with an optional porch extending outdoor living. With its efficient use of space, the ERH-70F151-HS balances comfort and practicality in a modern single-section design.