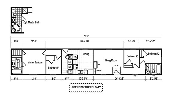
The Hudson Single / ERH-80F225-HS built by Eagle River Homes features 1,013 sq. ft. of living space with 4 bedrooms and 2 bathrooms. The master bedroom is designed with comfort in mind, complemented by an optional master bath upgrade. An efficient kitchen flows into the dining and living areas, creating a welcoming space for gatherings. With three additional bedrooms, this home offers both function and flexibility. The ERH-80F225-HS delivers smart design and modern comfort for today’s lifestyle.