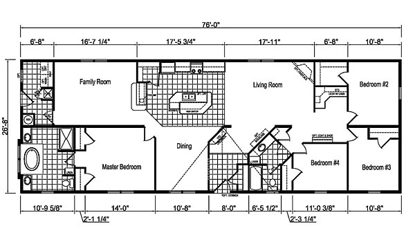
The Hudson Double / ERH-80J350-H built by Eagle River Homes offers an impressive 2,026 sq. ft. of living space with 4 bedrooms and 2 bathrooms. Featuring both a family room and living room, this home provides multiple areas for relaxation and entertainment. The spacious kitchen with a center island flows into the dining area, while the private master suite delivers a quiet retreat. Secondary bedrooms are well-placed for convenience and comfort. Designed for modern living, the ERH-80J350-H combines style, space, and practicality.