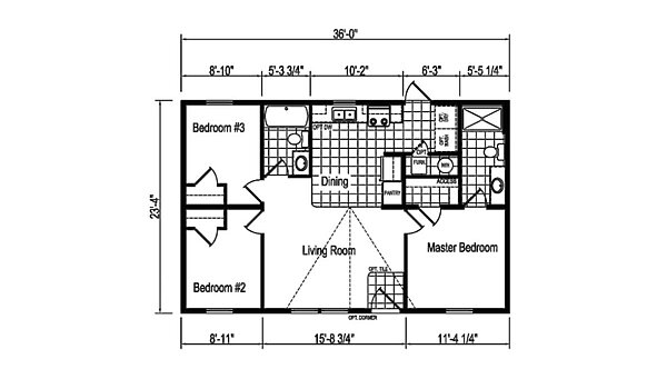
The Chesapeake / ERH-40G916-C built by Eagle River Homes offers 840 sq. ft. of efficiently designed living space with 3 bedrooms and 2 bathrooms. The layout balances comfort and function, with a master suite set apart for privacy and two additional bedrooms ideal for family or guests. The open living and dining areas provide a central gathering space, while the kitchen is arranged for convenience. Blending comfort and practicality, the ERH-40G916-C makes everyday living simple and enjoyable.