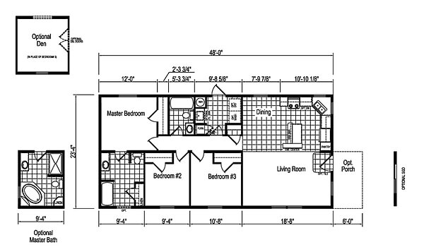
The Chesapeake / ERH-52G906-C built by Eagle River Homes offers 1,120 sq. ft. of functional living space with 3 bedrooms and 2 bathrooms. The open living and dining area creates a natural flow into the kitchen, complete with a convenient island and pantry. A comfortable master suite is paired with two additional bedrooms for family or guests. With options like an added porch or alternate master bath, the ERH-52G906-C combines comfort and versatility, making it a great choice for modern living.