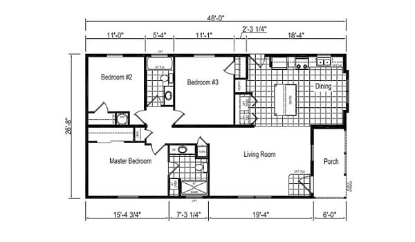
The Chesapeake / ERH-52J849 built by Eagle River Homes features 1,200 sq. ft. of carefully arranged living space with 3 bedrooms and 2 bathrooms. The open living room flows into a spacious dining area and efficient kitchen, making it ideal for gatherings. A private master suite offers comfort, while two additional bedrooms provide extra space for family or guests. Designed to balance function and comfort, the ERH-52J849 is a welcoming home for modern living.