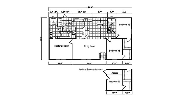
The Chesapeake / ERH-56J339-C built by Eagle River Homes features 1,386 sq. ft. of smartly designed living space with 3 bedrooms and 2 bathrooms. The master suite offers comfort and privacy, while the spacious living room connects seamlessly to the dining and kitchen area, creating a warm central hub. Two additional bedrooms provide flexibility for family or guests. With its practical layout and inviting feel, the ERH-56J339-C delivers both function and comfort in one home.