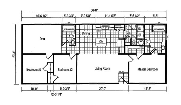
The Chesapeake / ERH-60G9005 built by Eagle River Homes offers 1,306 sq. ft. of well-planned living with 3 bedrooms and 2 bathrooms. The spacious layout includes a central living room that flows into the dining area and kitchen with an optional island, creating a comfortable hub for daily life. A separate den provides added flexibility, while the private master suite offers a quiet retreat. Combining practicality with modern comfort, the ERH-60G9005 is designed to meet a variety of needs.