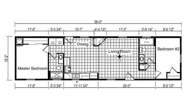
The Chesapeake / ERH-62S618 built by Eagle River Homes delivers 880 sq. ft. of comfortable living space with 2 bedrooms and 2 bathrooms. The open concept living room flows seamlessly into the dining area and kitchen, offering a warm setting for daily life. A private master suite provides a quiet retreat, while the additional bedroom and bathroom enhance functionality. With its efficient design, the ERH-62S618 combines comfort and convenience in a smartly arranged home.