Manufactured

Chesapeake ERH-64J887-CD

Built by: Eagle River Homes

3D Home Tour

No 3d Tour Available

About this Home

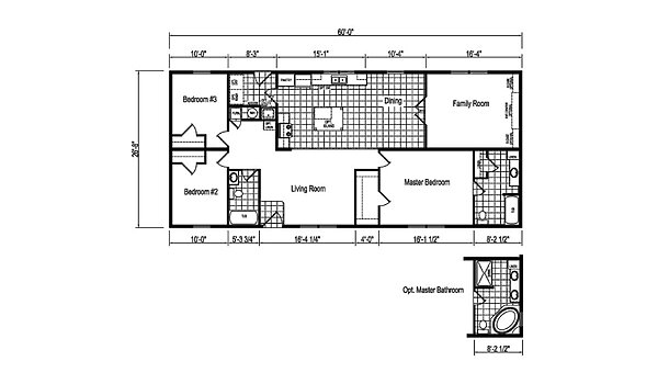
The Chesapeake / ERH-64J887-CD built by Eagle River Homes offers 1,600 sq. ft. of inviting living space with 3 bedrooms and 2 bathrooms. A spacious living room connects seamlessly to the dining area and kitchen, which features an optional island for added convenience. The master suite is paired with a private bath and generous closet space, while two additional bedrooms provide flexibility for family or guests. With a family room enhancing the layout, the ERH-64J887-CD delivers both comfort and function.

Share this home

Details

  • 3 Bedrooms
  • 2.00 Bathrooms
  • 1600 Square Feet
  • 28’0″ x 64’0″

PHotos

Tours & Videos

Specifications

No specification data available
¿Hablas español?