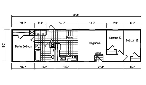
The Chesapeake / ERH-64S500-CS built by Eagle River Homes offers 910 sq. ft. of thoughtfully arranged space with 3 bedrooms and 1 bathroom. This design combines comfort and functionality, featuring an open living area connected to a central dining and kitchen space. The master bedroom sits privately at one end, while two additional bedrooms provide room for family or guests. With its efficient design and inviting layout, the ERH-64S500-CS is a practical and stylish home choice.