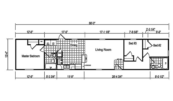
The Chesapeake / ERH-70F9030B-CS built by Eagle River Homes offers a well-balanced 880 sq. ft. design featuring 3 bedrooms and 2 bathrooms. The open dining area connects seamlessly to a spacious living room, providing an inviting space for daily activities. The master suite delivers comfort and privacy, while two additional bedrooms offer flexibility for family or guests. With its efficient layout, the ERH-70F9030B-CS combines modern convenience and cozy living in a compact footprint.