Manufactured

Chesapeake ERH-70F9030C-CS

Built by: Eagle River Homes

3D Home Tour

No 3d Tour Available

About this Home

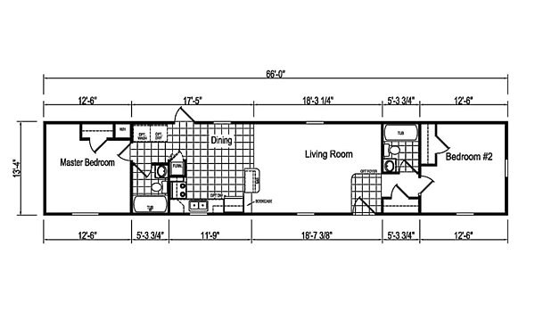
The Chesapeake / ERH-70F9030C-CS built by Eagle River Homes offers a smart 880 sq. ft. layout with 2 bedrooms and 2 bathrooms. The open dining area flows into a spacious living room, creating a bright, welcoming space for daily living. A well-placed kitchen enhances convenience, while the master bedroom with its private bath provides a restful retreat. With an additional bedroom and bath for guests or hobbies, the ERH-70F9030C-CS blends comfort, practicality, and charm in a compact design.

Share this home

Details

  • 2 Bedrooms
  • 2.00 Bathrooms
  • 880 Square Feet
  • 14’0″ x 70’0″

PHotos

Tours & Videos

Specifications

No specification data available
¿Hablas español?