Manufactured

Chesapeake ERH-70S1089

Built by: Eagle River Homes

3D Home Tour

No 3d Tour Available

About this Home

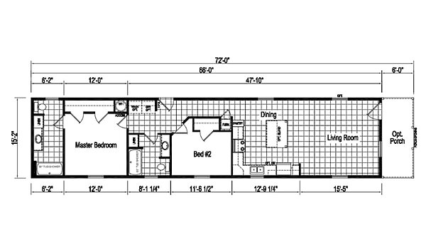
The Chesapeake / ERH-70S1089 built by Eagle River Homes features 1,001 sq. ft. of smartly arranged living space with 2 bedrooms and 2 bathrooms. The design highlights a welcoming living room that flows into a spacious dining area and kitchen, creating an inviting setting for daily life. The master suite offers comfort and privacy, while the second bedroom and bath are perfect for family or guests. Blending convenience and style, the ERH-70S1089 provides a home that feels both efficient and inviting.

Share this home

Details

  • 2 Bedrooms
  • 2.00 Bathrooms
  • 1001 Square Feet
  • 16’0″ x 70’0″

PHotos

Tours & Videos

Specifications

No specification data available
¿Hablas español?