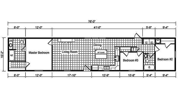
The Chesapeake / ERH-80S614-CS built by Eagle River Homes brings 1,152 sq. ft. of comfort with 3 bedrooms and 2 bathrooms. A spacious living room connects seamlessly to the dining area and modern kitchen, which includes an optional island for added function. The private master suite with full bath offers a relaxing retreat, while two additional bedrooms share a second bathroom for convenience. With its open layout and thoughtful design, the ERH-80S614-CS creates a perfect balance of style and everyday comfort.