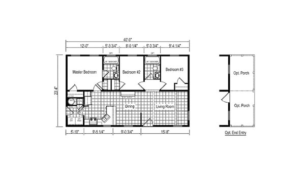
The Eagle’s Nest / ERH-44G1001 built by Eagle River Homes makes the most of 933 sq. ft. with 3 bedrooms and 2 bathrooms. A welcoming living room flows into the dining area and efficient kitchen, creating a space that feels open and bright. The master suite offers its own private bath, while two additional bedrooms share a second full bath, giving everyone their own comfort. With optional porch entries adding charm and flexibility, the ERH-44G1001 is a compact design that delivers style, comfort, and convenience.