Manufactured

The Crossings ERH-68J603

Built by: Eagle River Homes

3D Home Tour

No 3d Tour Available

About this Home

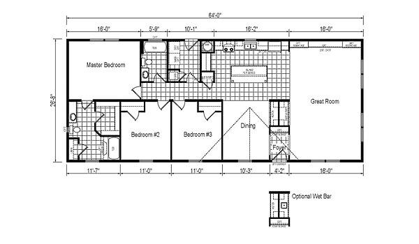
The Crossings / ERH-68J603 built by Eagle River Homes blends everyday ease with welcoming style. At 1,706 square feet, The ERH-68J603 features 3 bedrooms and 2 bathrooms, centered on an island kitchen that opens to the dining area and a 16′ wide great room. A defined foyer adds storage and privacy, while the split layout places a serene master suite with generous bath away from Bedrooms 2 and 3 and their hall bath. An optional wet bar near the great room invites effortless entertaining. Extra storage, walk-in closet, and circulation simplify life.

Share this home

Details

  • 3 Bedrooms
  • 2.00 Bathrooms
  • 1706 Square Feet
  • 28’0″ x 68’0″

PHotos

Tours & Videos

Specifications

No specification data available
¿Hablas español?