Manufactured

The Crossings ERH-80J605

Built by: Eagle River Homes

3D Home Tour

No 3d Tour Available

About this Home

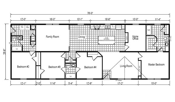
The Crossings / ERH-80J605 built by Eagle River Homes combines generous gathering spaces with smart separation of the bedrooms. At 2,026 square feet, The ERH-80J605 offers 4 bedrooms and 2 bathrooms, anchored by a central island kitchen and oversized dining room. A quiet home office sits just off the kitchen, while two distinct living areas—family room and living room—create flexible zones for daily life. The private master suite enjoys a spa bath and ample closet space, and three secondary bedrooms share a full bath near the laundry. Designed for comfort, connection, and easy entertaining.

Share this home

Details

  • 4 Bedrooms
  • 2.00 Bathrooms
  • 2026 Square Feet
  • 28’0″ x 80’0″

PHotos

Tours & Videos

Specifications

No specification data available
¿Hablas español?